Willkommen bei der

SPD Bad Wimpfen

Grünes Licht für den Aufstellungsbeschluss des Bebauungsplans Gewerbegebiet „Landgraben / Mäuerlesäcker“

Veröffentlicht am 27.07.2025 in Fraktion
 

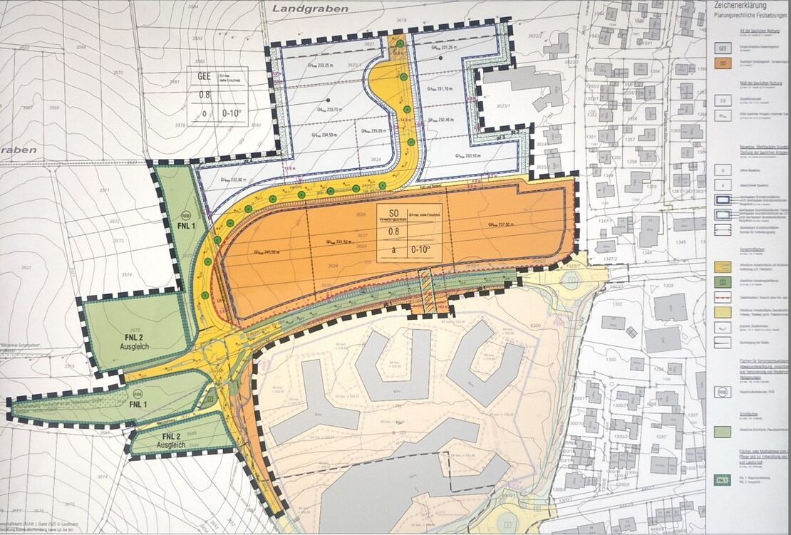
Gewerbegebiet MäuerlesäckerGewerbegebiet Karte

Am 24.7.2025 hat der Gemeinderat mehrheitlich für die Erschließung neuer, kleinteiliger Gewerbestrukturen im Gewerbegebiet Landgraben/Mäuerlesäcker gestimmt. Unsere Fraktion SPD-Wimpfener Liste ist sehr froh, mit diesem Schritt endlich die Möglichkeit zur Erweiterung für ortsansässige Betriebe zu schaffen und so zu verhindern, dass noch mehr Wimpfener Handwerksbetriebe ins Umland abwandern!

Auch für neue Betriebe, welche die Stadtverwaltung bisher auf Anfragen aufgrund mangelnder Flächen abweisen musste, werden hier Ansiedelungs­möglichkeiten geschaffen. Wir versprechen uns davon auch neue, interessante Ausbildungsmöglichkeiten für junge Menschen aus Bad Wimpfen!

Die besagten Flächen entsprechen dem weißen Teil des Plangebiets. Die oran­genen Flächen gehören bereits der Schwarzgruppe und können bei Bedarf zur Erweiterung der Lidl-Zentrale genutzt werden. Am rechten Rand grün einge­zeichnet sind 2 Regenrückhaltebecken und gesichert begrünte Ausgleichsfläch­en für die vorgenommene Bebauung.

Die verkehrstechnische Anbindung wird durch einen weiteren Kreisverkehr auf der Rappenauer Straße erfolgen. Auch die Fuß- und Radwegeführung von Bad Wimpfen in Richtung Rappenau soll sicher und modern durch das neue Gebiet führen.

Für alle Bad Wimpfener in allen Details einsehbar und nachzulesen (was für Gewerbe darf sich ansiedeln? Wie ist die Abgrenzung zum Wohngebiet? …) liegt der Vorentwurf des neuen Bebauungsplans nun im Rathaus aus, ist auf der Homepage der Stadt und im Internet zu finden und es können bei Bedenken Stellungnahmen dazu abgegeben werden.

Die Fraktion SPD-Wimpfener Liste mit den Gemeinderätinnen Julia Laras, Cornelia Bär-Stoll, Dr. Christiane Krestel-Al Khouri und Sabine Keidel ist froh und stolz, Teil dieser wichtigen Entwicklung für Bad Wimpfen zu sein!

 

Termine

Alle Termine öffnen.

28.04.2026, 19:00 Uhr Stammtisch mit SPD-Ortsverein Bad Rappenau

29.04.2026, 19:00 Uhr Gemeinderatssitzung

19.05.2026, 19:00 Uhr Stammtisch mit SPD-Ortsverein Bad Rappenau

Wir bei Facebook

Spenden

Ortsvereinsarbeit kostet Geld. Daher sind wir auf Ihre Unterstützung angewiesen.

SPD Ortsverein Bad Wimpfen

Volksbank Heilbronn

IBAN DE21 6229 0110 0401 2880 05

Zur Ausstellung der Spendenbescheinigung, geben Sie bitte unter Referenz " SPD Bad Wimpfen+ Ihren Namen/Adresse" an.

Vielen Dank!

Aktuelle-Artikel

Suchen

Counter

Besucher:389168
Heute:35
Online:2